












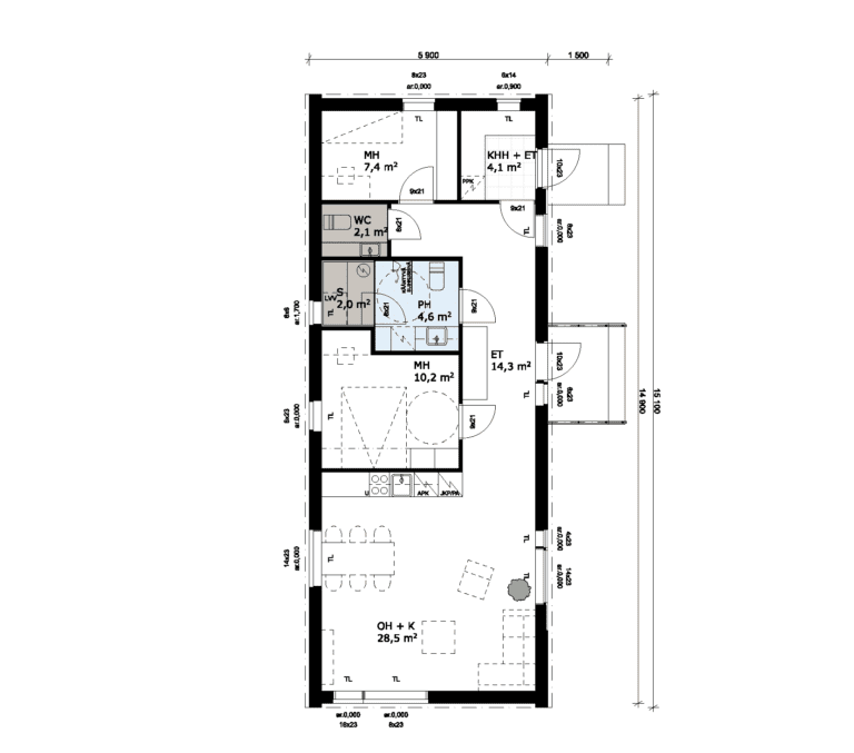
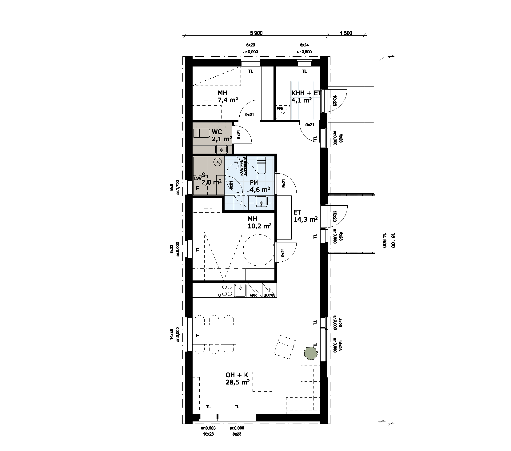
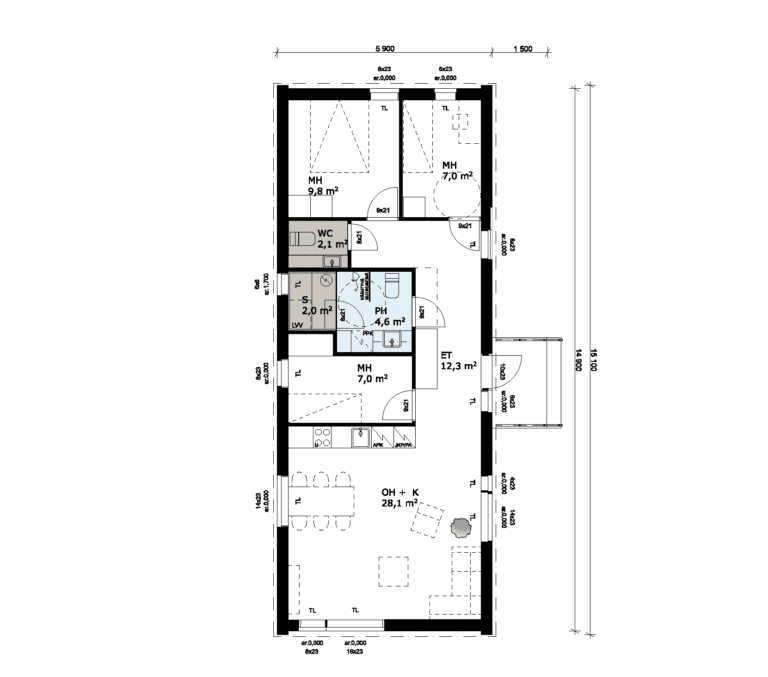
Living room + 3 bedrooms + kitchen + bathroom + sauna + toilet + hallway
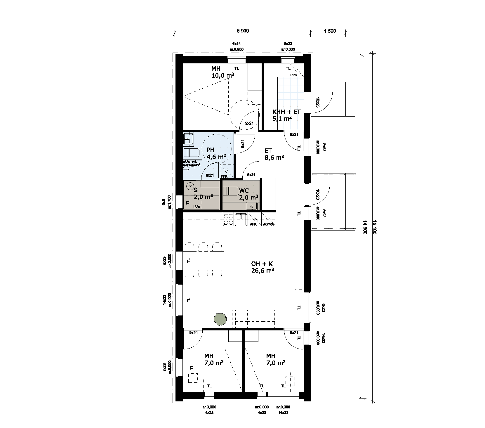
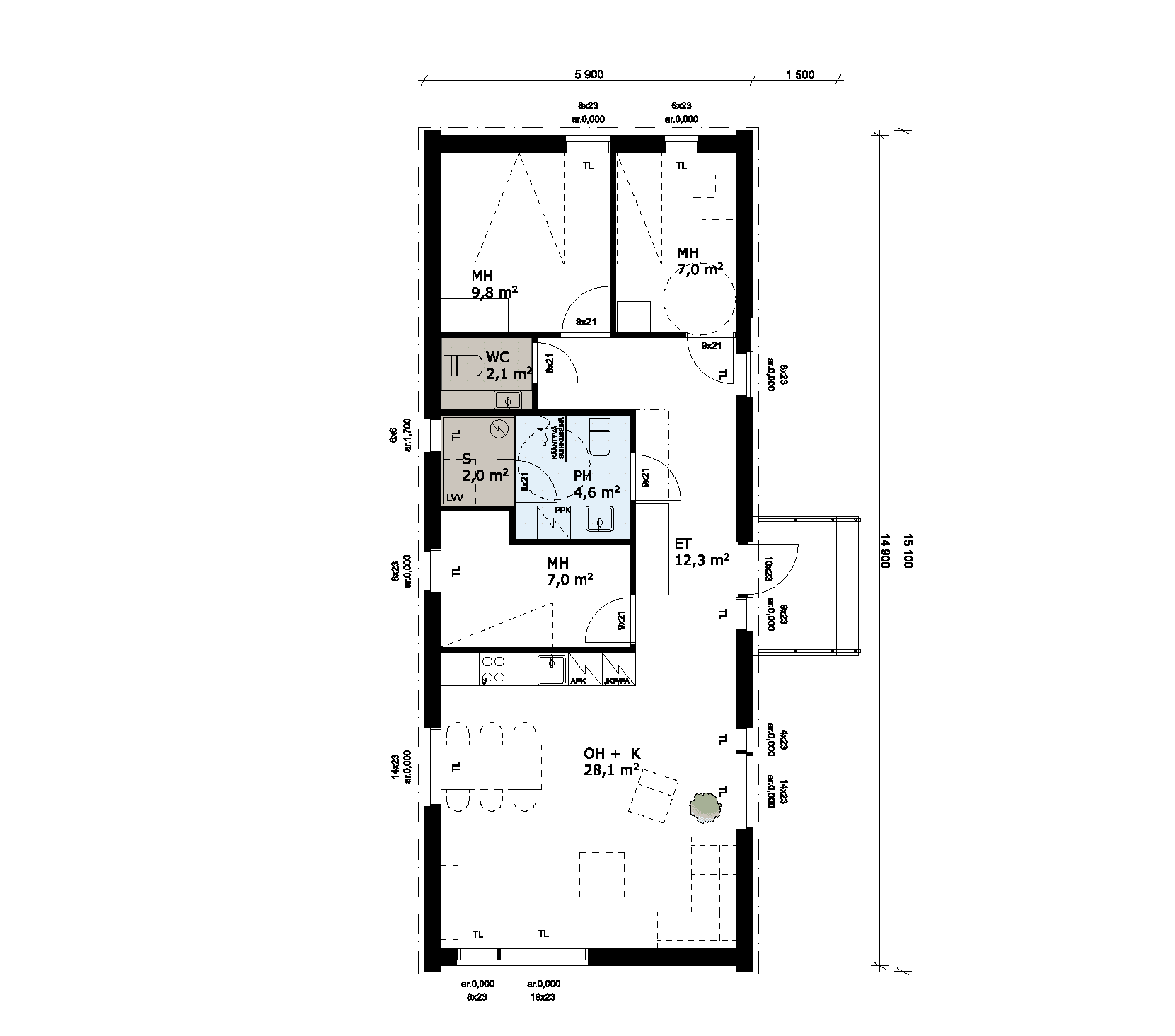
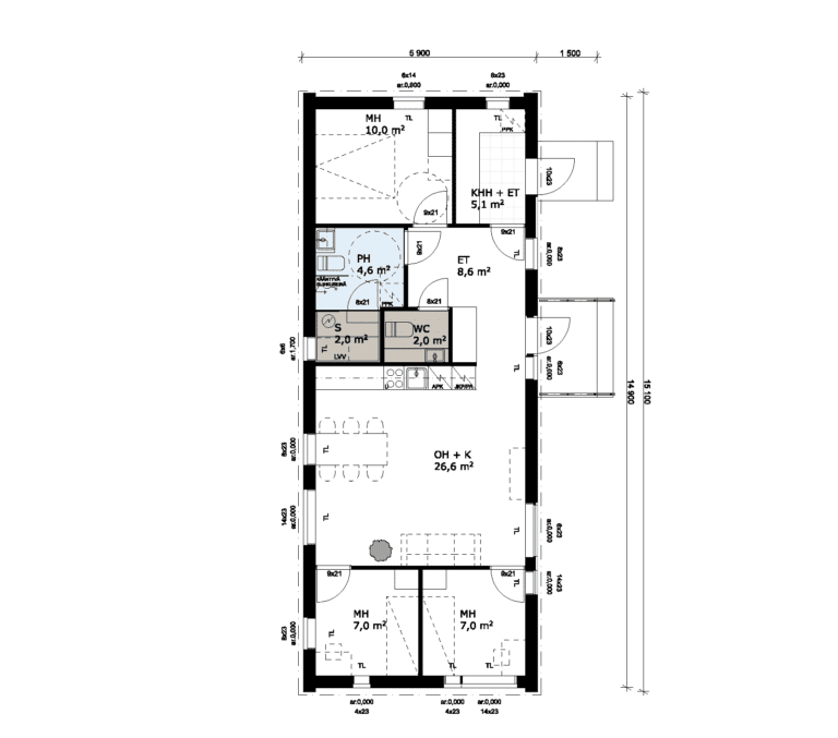
Living room + 2-3 bedrooms + kitchen + bathroom + sauna + toilet + hallway + utility room
Greater dimensions of everyday life.
HAWO’s largest house model does not fit in the traditional one-use mold. Three different blueprints bring practical alternatives within the same square meters.
Do you long for a modern, spacious home for adults? With an office and a large combined kitchen and living room? Or three bedrooms and a utility room for a family’s needs? In this multidimensional model the functions are there.
The warm shades of wood and modern Nordic mixes of light and dark surfaces finish your own home’s feeling whichever the setting.
For greater everyday experiences.
3 or 4 rooms + kitchen + bathroom + sauna + toilet + hallway (+ utility room)
Floor area: 88.0 m²
Living area: 75.5 m²
HAWO Oma is a modern range of houses fulfilling all regulations and guidelines for permanent housing solutions in Finland.
Through our innovative construction method we can deliver to your plot of land a complete single-family house of up to 3 bedrooms within a few months from order, with genuine ease. Installation for being move-in ready can be finalized already during the delivery day.
All you need to your plot of land is a flat, frost-protected base and the outlets for electricity, water and plumbing in their designated location. All drawings and instructions for this are also provided by us!
The purchase of a HAWO Oma house includes the following:
The following standard equipment is included in Oma 88 houses:
HAWOn tiimi vastaa mielellään hankettasi koskeviin kysymyksiin. Yhdessä löydämme ratkaisun majoitusta ja asumista koskeviin tarpeisiisi.
Olemme Sinuun yhteydessä muutaman päivän sisällä!